︎ About
︎ Contact
︎ LinkedIn
Entertainment Design
︎︎︎Middle East
︎︎︎United States
︎︎︎China
Residential Design ︎︎︎Residential and Hotel Projects
︎ Contact
Entertainment Design
︎︎︎Middle East
︎︎︎United States
︎︎︎China
Residential Design ︎︎︎Residential and Hotel Projects

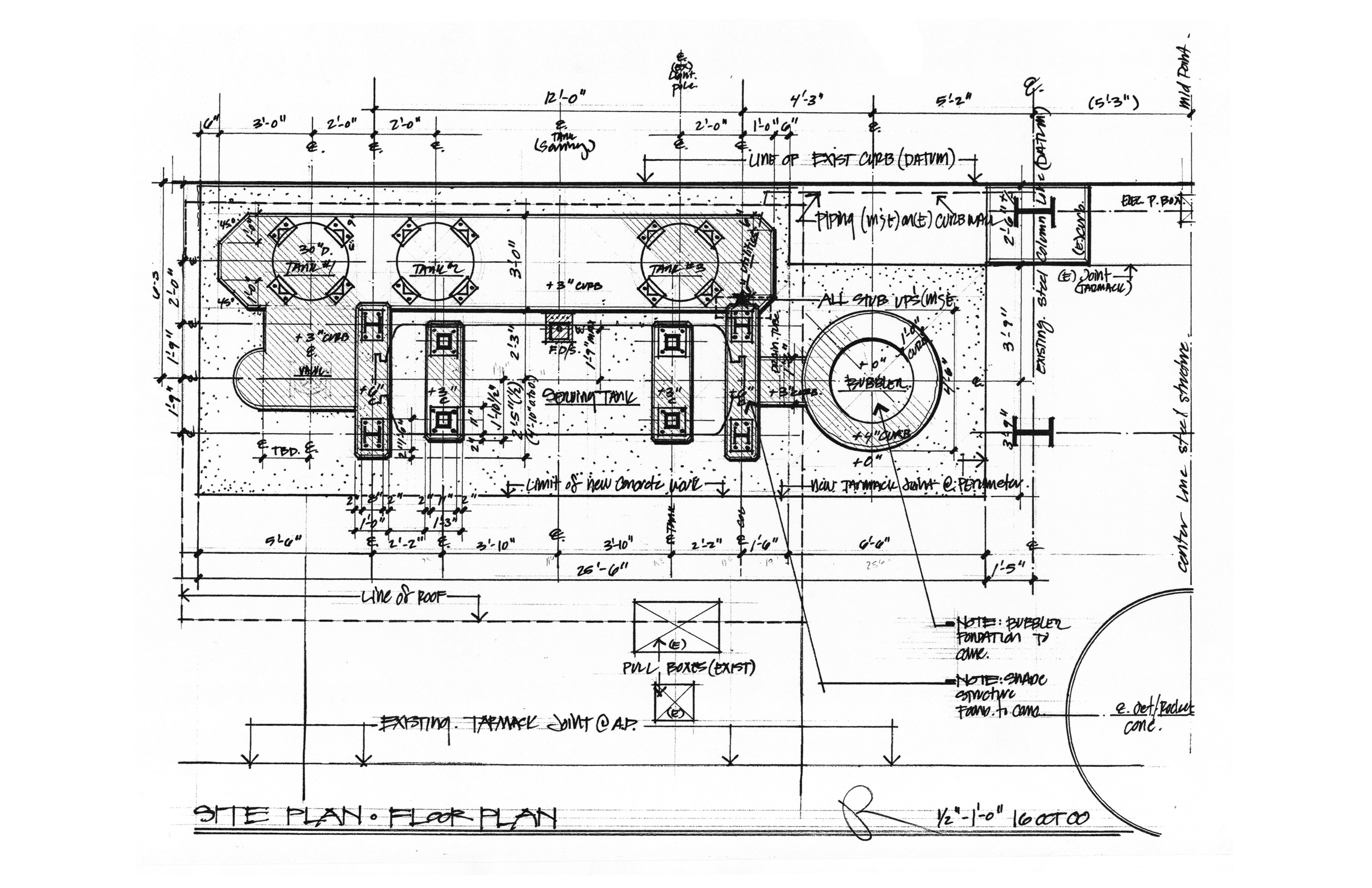
Cool Your Jets
Disney’s California Adventure, Anahiem | 2000
Brief
Designed and fabricated for the opening of Disney California Adventures in 2001, Cool Your Jets was an immersive waterplay activity and refreshment stand placed in front of the Soarin’ California attraction in Condor Flats.
The project was overseen by Chairman of Walt Disney Attractions Paul Pressler and featured collaboration with Director Barry Braverman (Moonrise Kingdom, The Darjeeling Limited).
Key Project Highlights
Designed and fabricated for the opening of Disney California Adventures in 2001, Cool Your Jets was an immersive waterplay activity and refreshment stand placed in front of the Soarin’ California attraction in Condor Flats.
The project was overseen by Chairman of Walt Disney Attractions Paul Pressler and featured collaboration with Director Barry Braverman (Moonrise Kingdom, The Darjeeling Limited).
Key Project Highlights
-
Completed in 2 months prior to park opening
- Designed utilizing existing commercial plumbing products in a thematic fashion to simulate a test firing station for a Rocketdyne Saturn V engine
Project Images
Design Images








































