︎ About
︎ Contact
︎ LinkedIn
Entertainment Design
︎︎︎Middle East
︎︎︎United States
︎︎︎China
Residential Design ︎︎︎Residential and Hotel Projects
︎ Contact
Entertainment Design
︎︎︎Middle East
︎︎︎United States
︎︎︎China
Residential Design ︎︎︎Residential and Hotel Projects

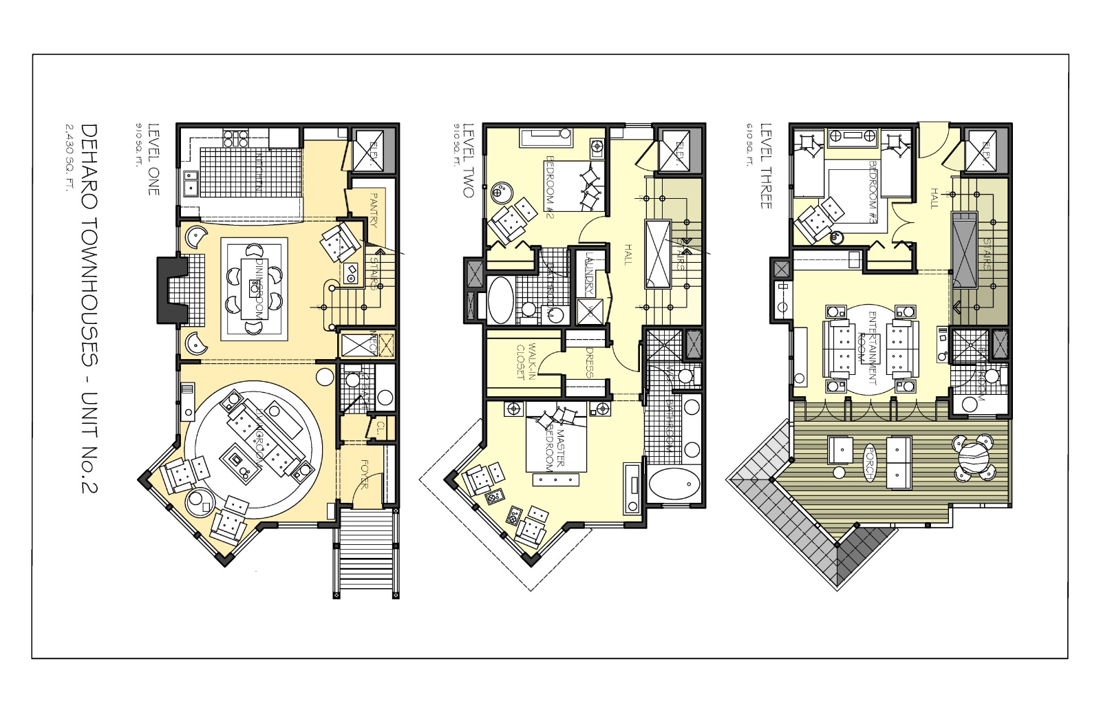
De Haro Row Houses
Roche Harbor, San Juan Island, Washington · Completed 2014
Five row houses climb a hill behind the historic Hotel de Haro and Wedding Pavillion. Designed in this century with all amenities, following the Roche Harbor pattern book. The houses were designed to bring residents to the town center, helping to generate a downtown population and adhering to a more traditional village density. Echoing an older time, these charming homes offer all the modern amenities while retaining a village charm.
Key Project Highlights
Key Project Highlights
- Sustainable materials
- Preserved sight lines
- Sense of community
Project Images
Design Images




















